Ordinary Meeting
Notice is hereby given that a meeting of the Council of Burwood will be held in the Conference Room, 2 Conder Street, Burwood on Tuesday 24 March 2026 at 6:00 PM to consider the matters contained in the attached Agenda.
The public gallery will be open for those wishing to observe the meeting. In addition, an opportunity to observe the meeting via audio visual link will also be made available.
Public Forum
A public forum will be held at 6:00 pm, prior to the commencement of the meeting, to allow members of the public to make oral submissions about an item on the Agenda for the meeting. The opportunity will also be provided to speak via audio visual link.
Anyone wishing to address Council during the public forum will need to register by 2:00 pm on the day of the meeting. A person wishing to speak must indicate the item of business on the Agenda they wish to speak on and whether they wish to speak ‘for’ or ‘against’ the item. Registrations to speak can be lodged on Council’s website.
The Council Meeting will commence immediately after the conclusion of the Public Forum.
Tommaso Briscese
General Manager
Councillors
|
|
Cr John Faker Mayor 9911 9916 |
|
|
Cr George Mannah Deputy Mayor 0428 363 826 |
|
|
Cr Sukirti Bhatta 0499 811 652 |
|
|
Cr Pascale Esber 0428 459 667 |
|
|
Cr David Hull 0428 369 269 |
|
|
Cr Alex Yang 0482 933 247 |
|
|
Cr Deyi Wu-Coshott 0484 123 988 |
|
|
|
Council meeting room




Agenda
For an Ordinary Meeting of Burwood Council to be held in the Conference Room, Level 1, 2 Conder Street, Burwood on Tuesday 24 March 2026 immediately after the Public Forum commencing at 6.00pm.
1. Prayer
Lord, we humbly beseech thee to vouchsafe thy blessing on this Council, direct and prosper its deliberations for the advancement of this area and the true welfare of its people. Amen.
2. Acknowledgement of Country
3. Statement of Ethical Obligations
4. Recording of Meeting
5. Apologies
6. Declarations of Interest
7. Declaration of Political Donations
8. Confirmation of Minutes
Minutes of the Council Meeting held on Tuesday, 17 February 2026, copies of which were previously circulated to all councillors be hereby confirmed as a true and correct record.
9. Mayoral Minutes
(Item MM4/26) Infrastructure Delivery to Support Urban Growth...................................... 5
(Item MM5/26) Keeping Burwood Cool Competition......................................................... 6
10. Reports to Council
(Item 10/26) Burwood North Metro Precinct – NSW Government State-Led Rezoning Proposal..................................................................................................... 7
(Item 11/26) Endorsement of Planning Proposal for the Heritage Listing of The Strand for Submission to DPHI for Gateway Determination.................................... 11
(Item 12/26) 2025-26 Burwood Community Satisfaction Survey............................... 186
(Item 13/26) Draft Related Party Disclosures Policy - Endorsement for Public Exhibition 191
(Item 14/26) Draft Statement of Business Ethics - For Adoption............................... 211
(Item 15/26) Investment Report as at 31 January 2026 and 28 February 2026....... 219
(Item 16/26) National General Assembly of Local Government and the Australasian Placemaking Summit 2026 - Conference Attendance.......................... 227
11. Conclusion of the Meeting
File No: 26/11847
Mayoral Minute by Cr John Faker (Mayor)
Over the next 15–20 years, the population of the Burwood Local Government Area is expected to increase significantly to support housing supply and employment growth, consistent with the NSW Government’s metropolitan strategy and the designation of Burwood as a Strategic Centre.
The strong partnership between Council and the NSW Government has delivered a range of social and economic outcomes, including over $110 million in transformational infrastructure projects through the Western Sydney Infrastructure Grants Program, investment in arts and culture through vibrancy and night-time economy initiatives, and the delivery of the Sydney Metro, which will enable residents to travel to both Parramatta and the Sydney CBD within approximately 10 minutes.
While these investments are acknowledged, it is important that Council seeks clarity from the NSW Government regarding how critical State infrastructure and services will be planned, delivered and funded to support future growth. As population increases within the Burwood Local Government Area, the provision of infrastructure such as schools, health services, transport, and emergency services will be required to support the community. It is also important that planning frameworks supporting future growth include clear mechanisms to facilitate the delivery and provision of additional open space for the community.
Operational Plan Objective
C.3 An urban environment that maintains and enhances our sense of identity and place.
C.3.1 Facilitate well designed, high quality and sustainable land use and development that is appropriately scaled to complement its surroundings.
C.4 Sustainable, integrated transport, infrastructure and networks to support population growth and improve liveability and productivity.
C.4.2 Plan for a city that is safe, accessible and easy to get to and move around in
I therefore move that:
That the Mayor write to the NSW Minister for Planning and Public Spaces and the Local Member for Strathfield seeking confirmation that any urban transformation within the Burwood Local Government Area, and associated population growth, will be supported by the timely planning, delivery and funding of adequate state infrastructure, including schools, health services, transport, and emergency services, and that planning frameworks include clear mechanisms to facilitate the provision of additional open space to support the growing community.
There are no attachments for this report.
File No: 26/4976
Mayoral Minute by Cr John Faker (Mayor)
Burwood has recently been recognised as Australia’s coolest neighbourhood, but being cool is not only about culture, food and vibrancy. It is also about creating a greener, healthier and more comfortable place to live.
For years, Council has made a strong and sustained investment in greening Burwood’s neighbourhoods, including extensive tree planting across streets, parks and public spaces, with almost $1 million invested. Initiatives such as the Mayoral Street Tree Planting Program, now in its sixth year, have played a key role in strengthening urban canopy and improving street amenity across the LGA, with over 1,600 trees planted to date.
There is an opportunity to build on this momentum through a new community initiative, the “Keeping Burwood Cool Competition”, celebrating the residents who are helping to green and cool Burwood through their planting efforts.
Across the community residents are already making meaningful contributions by caring for their gardens, balconies and other small green spaces around their homes. These everyday efforts collectively shape the character of our streets, enhance neighbourhood amenity, and support a healthier and more liveable environment for all.
Greening also plays an important role in supporting wellbeing and improving urban comfort. When multiplied across streets and communities, these small contributions help create cooler, greener and more pleasant places for everyone to enjoy.
This competition could recognise gardens, verges, balconies and other green spaces that contribute to cooling and beautifying the local environment. A small prize could be awarded to the winner or winners across categories, to recognise effort and contribution, based on people’s votes and a selection overseen by Council staff.
This initiative aligns with Council’s continued commitment to urban greening, improving neighbourhood amenity, supporting wellbeing and strengthening community pride of place, while reinforcing Burwood’s identity as a cool, vibrant and liveable neighbourhood.
Operational Plan Objective
C.2.3 Provide opportunities for people to participate in activities and events that celebrate our diverse community, history and culture
I therefore move that:
1. The General Manager investigate the establishment of an annual Keeping Burwood Cool Competition, commencing in 2026.
2. The General Manager investigate the development of a policy to enable planting on verges, to further encourage community participation in greening and cooling Burwood’s neighbourhoods.
There are no attachments for this report.
File No: 26/12476
Report by Director City Strategy
Summary
The NSW Government has placed an updated Burwood North Metro Precinct Masterplan on public exhibition as part of a State-led rezoning process for land surrounding the future Burwood North Metro Station.
The proposal is currently on exhibition until 10 April 2026, with submissions required to be made directly to the NSW Department of Planning, Housing and Infrastructure (DPHI) by both community members and councils.
The proposal includes an increase in development density and associated population growth, which has implications for the provision of physical and social infrastructure.
This report seeks Council’s endorsement for Council to prepare and submit a technical submission to DPHI on the exhibited Masterplan, including addressing the delivery and funding of the physical and social infrastructure required to support increased density within the precinct, as well as consideration of infrastructure delivery responsibilities and development contributions and funding mechanisms.
Operational Plan Objective
A.63 Research plans and opportunities for the creation of public open spaces as part of the planning of the Burwood North Precinct.
A.76 Undertake initiatives that support new economic growth in the Burwood North Precinct and Burwood Town Centre.
C. 3 An urban environment that maintains and enhances our sense of identity and place.
C.3.1 Facilitate well designed, high quality and sustainable land use and development that is appropriately scaled to complement its surroundings.
C.4 Sustainable, integrated transport, infrastructure and networks to support population growth and improve liveability and productivity.
C.4.2 Plan for a city that is safe, accessible and easy to get to and move around in
Background
The NSW Government has placed the updated Burwood North Metro Precinct Masterplan on public exhibition as part of a State-led rezoning process for land surrounding the future Burwood North Metro Station. The proposal is being progressed by the NSW Department of Planning, Housing and Infrastructure (DPHI) through the State Significant Rezoning Pathway, following the NSW Government’s 2025 decision to assume responsibility for rezoning the precinct and build upon master planning work previously undertaken by Burwood Council and Canada Bay Council.
The rezoning proposal seeks to amend the planning controls within the Burwood Local Environmental Plan 2012 (BLEP 2012) and the Canada Bay Local Environmental Plan 2013 (CBLEP 2013). These amendments are intended to facilitate increased housing supply, employment opportunities and supporting infrastructure within a transit-oriented precinct aligned with the delivery of the Sydney Metro West project, which is scheduled for completion in 2032.
The precinct comprises approximately 113 hectares of land within an 800-metre walking catchment of the future metro station, located at the intersection of Burwood Road and Parramatta Road. It spans land within both the Burwood and Canada Bay local government areas and is identified as a key urban renewal area within broader strategic planning frameworks, including the Parramatta Road Urban Transformation Strategy.
Key elements of the proposal include capacity for approximately 18,300 new dwellings, including a requirement for 5–10 per cent affordable housing, and approximately 3,900 additional jobs. The proposal also includes the provision of more than 20 pocket parks and greenways, enhanced public domain areas, and improved active transport connections, including walking and cycling links. Building heights are proposed to range from approximately 8 to 42 storeys (28 to 140 metres), reflecting a transition to a high-density, mixed-use environment centred on the future metro station.
The proposal introduces changes to land use zoning, including the application of MU1 Mixed Use, R4 High Density Residential and SP2 Infrastructure zones to support a mix of residential, commercial, employment and community use. Amendments to floor space ratio and building height controls are also proposed to facilitate increased development capacity, supported by urban design analysis and feasibility testing.
The proposal also includes the identification of key sites intended to deliver public benefits, such as open space, through-site links, public domain improvements, and road infrastructure. These sites may be eligible for incentive-based planning controls where identified infrastructure outcomes are delivered. Additional provisions relate to active street frontages, design excellence, and the preparation of a precinct-specific Design Guide to support built form, public domain, and amenity outcomes.
The proposal is currently on public exhibition until 10 April 2026, with submissions required to be made directly to DPHI. Submissions received during the exhibition period will inform the finalisation of the rezoning proposal, with an outcome anticipated in 2026.
Proposal
This report seeks endorsement for Council to undertake a review of the NSW Government’s publicly exhibited Burwood North Metro Precinct Masterplan and supporting documentation, and to prepare and submit a technical submission on planning and urban design matters to the NSW Department of Planning, Housing and Infrastructure (DPHI).
As part of this submission, specific consideration is to be given to infrastructure-related matters, including infrastructure provision, delivery responsibilities, and funding mechanisms. Noting that the scale of proposed development and associated population growth has implications for the provision of physical and social infrastructure, including transport infrastructure, open space, schools, health services, community facilities, emergency services, and affordable housing.
Development Contributions Framework
Infrastructure funding and delivery for the precinct is proposed to occur through a combination of local and State mechanisms. Local infrastructure is typically funded through development contributions plans, while State infrastructure may be supported through mechanisms such as the Housing and Productivity Contribution and capital funding programs. DPHI has indicated that further work will be undertaken in collaboration with councils to align infrastructure delivery with the timing and scale of development.
Local infrastructure contributions, also referred to as developer contributions, are levied by councils under the Environmental Planning and Assessment Act 1979 to fund infrastructure required to support development. This includes infrastructure such as parks, community facilities, local roads, footpaths, stormwater drainage, and traffic management works.
Contributions are generally collected through Section 7.11 contributions, which are based on the relationship between development and infrastructure demand, and Section 7.12 levies, which are applied as a percentage of development cost.
Council currently delivers local infrastructure through development contributions plans, including a 4% levy within the Burwood Town Centre, supported by Council’s Voluntary Planning Agreement (VPA) Policy. Any submission should include a request for at least the same application or adaptation of similar infrastructure funding mechanisms within the Burwood North Metro Precinct to support infrastructure delivery associated with future growth as 7.11 contributions are capped at a maximum of $20,000 per dwelling and lower percentages under 7.12 contributions will possibly lead to a funding shortfall impacting councils’ financial sustainability.
Open Space Provision and Ongoing Maintenance
The exhibited masterplan identifies the delivery of new and enhanced open space within the precinct, including parks, greenways, and public domain improvements. The provision of this open space appears to be facilitated through incentive-based planning mechanisms, including key site provisions, which may enable the delivery and dedication of land for public use. Consideration should be given to ensuring that any land delivered for public open space is provided to Council at no cost as part of the development process.
Given the scale of proposed growth and the associated increase in public infrastructure assets, there are ongoing implications for Council in relation to maintenance, renewal, and operational costs. Consideration should also be given to the availability of State funding mechanisms, including grants or other funding programs, to support the long-term maintenance and management of new infrastructure delivered as part of the precinct.
Affordable Housing
The proposal incorporates an affordable housing requirement of 5–10 per cent of new residential development, to be delivered either as dwellings or as equivalent contributions and managed by a registered community housing provider. Council should also advocate for additional planning mechanisms to increase social infrastructure such as affordable housing through the activation of existing provisions under relevant State Environmental Planning Policies for infill affordable housing, or the introduction of a similar mechanism through amendments to Council’s Local Environmental Plan to achieve the same outcomes in support of the delivery of affordable housing and associated community infrastructure within the precinct.
Consultation
The NSW Government has placed an updated Burwood North Metro Precinct Masterplan is currently on public exhibition until 10 April 2026 as part of a State-led rezoning process for land surrounding the future Burwood North Metro Station.
Any community or Council submissions is required to be made directly to the NSW Department of Planning, Housing and Infrastructure (DPHI) by both community members and councils.
Planning or Policy Implications
The publicly exhibited The NSW Government updated Burwood North Metro Precinct Masterplan looks to made amendments to Burwood Local Environment Plan 2012 to increase housing and jobs in the Burwood North and Concord area. This will result in zoning, height, FSR and other planning control changes along with a variation to the urban form of the area. Any change to density will have implication on infrastructure for the LGA and a need to fund, implement and maintain new assets.
Financial Implications
Any change to density in the Burwood North Precinct will have financial implication on infrastructure for the LGA and a need to fund, implement and maintain new assets.
Conclusion
The NSW Government has exhibited an updated masterplan for the Burwood North Metro Precinct as part of a State-led rezoning process around the future metro station.
Public submissions are open until 10 April 2026 and are to be made directly to the NSW Department of Planning, Housing and Infrastructure.
The proposal introduces increased development capacity and population growth, with associated requirements for supporting physical and social infrastructure.
This report seeks Council’s endorsement to prepare and submit a technical response to the exhibited masterplan, including consideration of infrastructure provision, delivery responsibilities, and funding arrangements.
1. Council notes that the NSW Government has placed the Burwood North Metro Precinct Masterplan on public exhibition as part of the State-led rezoning process, with submissions open until 10 April 2026 and to be made directly to the NSW Department of Planning, Housing and Infrastructure.
2. The General Manager prepare and submit a technical submission to the NSW Department of Planning, Housing and Infrastructure which also addresses the need for infrastructure provision to support the population growth, appropriate funding mechanisms for required infrastructure and the need to increase provision of social infrastructure within the proposed rezoning as outlined in this report.
There are no attachments for this report.
File No: 26/11359
Report by Director City Strategy
Summary
Council has prepared a Planning Proposal (Attachment 1) to amend Schedule 5 of the Burwood Local Environmental Plan (BLEP) 2012 by adding a group heritage listing for The Strand, Croydon. The Planning Proposal applies to the properties located at 1–50 The Strand, Croydon.
The Planning Proposal responds to Council’s resolution at its Extraordinary Meeting of 29 January 2025, following the NSW Government’s Transport Oriented Development (TOD) Program for Croydon (gazetted by DPHI on 6 February 2026), where it resolved to further protect the buildings and shops within the commercial areas of the existing Heritage Conservation Area of The Strand, Croydon by pursuing their listing as a group heritage item.
The Planning Proposal is supported by a heritage assessment (Attachment 2) prepared by an independent heritage consultant, GML Heritage. The assessment demonstrates that the subject sites meet the threshold for local group heritage listing, satisfying multiple criteria established by the NSW Heritage Office.
In accordance with Ministerial Directions under the Environmental Planning and Assessment Act 1979, advice was sought from the Burwood Local Planning Panel (BLPP) on the Planning Proposal. The BLPP has subsequently endorsed the Planning Proposal for progression to Gateway Determination to amend the Burwood Local Environmental Plan 2012.
Operational Plan Objective
C.3 An urban environment that maintains and enhances our sense of identity and place.
C.3.1 Facilitate well designed, high quality and sustainable land use and development that is appropriately scaled to complement its surroundings.
C3.2 Protect our unique built heritage and maintain or enhance local character.
C.1.1 Support and deliver initiatives that encourage high-quality design, sustainable development and enhanced urban amenity.
C.10 A well informed community active in civic life, local planning and decision making
P.38 Deliver attractive, healthy streetscapes and centres that are inviting and foster community pride
Background
Council Resolution and Croydon Masterplan Response
On 29 January 2025, Council held an Extraordinary Meeting to determine its alternative response to the NSW Government’s Transport-Oriented Development (TOD) Program for Croydon. A copy of the Council report can be accessed here.
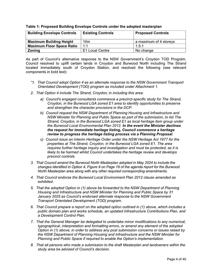
In response to the NSW Government’s Croydon TOD Program, Council resolved to adopt Option 4 as its alternate response, which includes uplift in The Strand, Croydon.
The adopted masterplan proposed a maximum building height of four storeys and an increase in the Floor Space Ratio (FSR) from 1:1 to 1.5:1 within The Strand.
Council’s resolution includes the following as it relates to The Strand, Croydon:
“2. That Option 4 include The Strand, Croydon; in including this area:
a) Council's engaged consultants commence a precinct-specific study for The Strand, Croydon, in the Burwood LGA zoned E1 area to identify opportunities to preserve and strengthen the character provisions in the DCP.
b) Council request the NSW Department of Planning Housing and Infrastructure and NSW Minister for Planning and Public Spaces as part of the submission, to list The Strand, Croydon, in the Burwood LGA zoned E1 as local heritage item group under the Burwood Local Environmental Plan 2012. In the event the Minister declines the request for immediate heritage listing, Council commence a heritage review to progress the heritage listing process via a Planning Proposal.
c) Council issue an Interim Heritage Order under the NSW Heritage Act 1977 for the properties at The Strand, Croydon, in the Burwood LGA zoned E1. The area requires further heritage inquiry and investigation and must be protected, as it is likely to be harmed whilst Council undertakes the heritage review and develops precinct controls.”
The full minutes of Council’s Extraordinary meeting of 29 January 2025 can be accessed here.
NSW Government Transport-Oriented Development Program
Council’s endorsed alternate Croydon Masterplan was submitted to the Department of Planning, Housing and Infrastructure (DPHI) on 31 January 2025.
On 6 February 2026, the NSW Government gazetted and implemented the Transport-Oriented Development (TOD) Program for Croydon within the Burwood Local Government Area.
The scheme was implemented through the gazettal of State Environmental Planning Policy (Amendment – Croydon North Masterplan Precinct) 2026. This is a self-repealing planning instrument and has the effect of amending the Burwood Local Environmental Plan 2012 to introduce changes to zoning, floor space ratios and maximum building heights across parts of Croydon.
A copy of the amending SEPP is available at the following link: Notice of Gazettal , with updated precinct maps available on the NSW Governments Eplanning Spatial Viewing Platform
Heritage Listing Request for The Strand
As anticipated, although Council requested the group heritage listing of The Strand through the TOD Program pathway, the amending SEPP did not include this listing. Accordingly, a separate Planning Proposal has been prepared for DPHI’s consideration.
Further investigation and legal advice obtained by Council confirmed that the issuing of an Interim Heritage Order was not available due to the existing Heritage Conservation Area status of The Strand.
Early Engagement and Community Feedback
Early engagement on the proposed heritage listing of The Strand commenced on 18 August 2025 and concluded on 22 September 2025. During this period, a total of 23 submissions were received. Of these:
· 19 submissions were received through the Participate Burwood online platform; and
· 4 submissions were received via direct email correspondence to Council, including submissions from the Burwood & District Historical Society and the National Trust of Australia (NSW).
None of the submissions received objected to the proposed group heritage listing of The Strand.
Burwood Local Planning Panel Advice
In accordance with Ministerial Directions under the Environmental Planning and Assessment Act 1979, advice on the Planning Proposal was sought from the Burwood Local Planning Panel (BLPP) on 16 October 2025.
The BLPP subsequently endorsed the Planning Proposal for the heritage listing of The Strand properties. A copy of the BLPP resolution is available in Attachment 5.
Next Steps
The matter is now before Council for endorsement of the Planning Proposal for progression to Gateway Determination to amend the Burwood Local Environmental Plan 2012.
Proposal
The Planning Proposal seeks to amend BLEP 2012 to include the properties at 1-50 The Strand, Croydon as a local group heritage item through their listing in Schedule 5 - Environmental Heritage and identification on the Heritage Map.
The Planning Proposal seeks to achieve the intended objectives and outcomes by amending Burwood LEP 2012 as follows:
· Amend the existing Heritage Map (ref: 1300 COM HER 001 010 20240603) (Figure 14) to add properties at 1-50 The Strand, Croydon as a local group heritage item as indicated in Figure 15 below.
· Amend Schedule 5 - Environmental Heritage to include the properties at 1-50 The Strand, Croydon as indicated in Table 3 below (blue font represents an insertion):
Attachment 1 contains the draft Planning Proposal Report in the format required by the Department of Planning, Housing and Industry (DPHI). This report contains detailed information on the planning proposal as it relates to the heritage significance of The Strand, Croydon to facilitate its group listing under Schedule 5 of BLEP 2012.
Attachment 2 is the Heritage Assessment Report for The Strand Croydon, dated August 2025. This report provides a detailed heritage assessment of The Strand, Croydon to support its proposed group heritage listing.
Attachment 3 contains the exhibited draft Heritage Inventory Sheet in the format required by the Heritage NSW and contains the key summary of the assessment completed by GML.
Site Context
Regional Context
The Strand, Croydon is located approximately 12 kilometres west of the Sydney CBD and is recognised as an established neighbourhood centre in the inner-western suburbs of Sydney.
![]()

Figure 1: Site Context, The Strand, Croydon (Source: Google Map)
Positioned immediately south/south-west of Croydon Railway Station on the Inner West Line (Figure 1), the subject site has strong connections to the metropolitan rail network, providing direct access to Sydney CBD and key centres such as Strathfield, Burwood and Ashfield. Bus services operating along the Strand, Paisley Road, Burwood Road and Shaftesbury Road further enhance accessibility to surrounding suburbs.
Parramatta Road is located approximately 1.5km to the north and provides east–west connectivity across metropolitan Sydney. Frederick Street to the east and Liverpool Road (Hume Highway) to the south provide additional arterial links. Together, these transport connections reinforce Croydon’s role as a highly accessible neighbourhood within the broader Sydney transport network, while also influencing patterns of land use, movement, and development in the area.
Local Context
Located to the immediate south/south-west of Croydon train station, The Strand comprises a compact local centre with commercial uses on the eastern and western sides of The Strand road reserve, forming a small neighbourhood shopping strip.
The subject site is bound by Paisley Road to the north, Paisley Lane to the east, Thomas Street/Malvern Avenue to the south, and Post Office Lane to the west. The eastern edge of The Strand fronting Paisley Lane is the boundary between Burwood and Inner West local government areas (Figure 2).
|
|
|
|
Figure 2: The Strand, Aerial View (source: Council GIS) |
Figure 3: The Strand, Cadastre details Croydon (Source: Council GIS) |
Statutory Planning Context
|
|
|
|
Figure 4: Existing Zoning (Source: NSW Eplanning Spatial Viewer) |
Figure 5: Existing Maximum FSR (Source: NSW Eplanning Spatial Viewer) |
The Strand comprises a total of 37 allotments (Figure 3) located along the eastern and western edges of The Strand road reserve and is currently zoned E1 Local Centre (previously B1 Local Centre) pursuant to BLEP 2012.
Under BLEP 2012, the existing Maximum Floor Space Ratio, Maximum Height of Building and the status of Heritage Conservation Area applicable to The Strand is shown in Figures 6, 7 and 8.
|
|
|
|
Figure 6: Existing Maximum Height of Building (Source: NSW Eplanning Spatial Viewer) |
Figure 7: Existing Heritage Conservation Status of the Strand (Source: NSW Legislation website) |
Malvern Hill Heritage Conservation Area
The Strand is located within the Malvern Hill Heritage Conservation Area (HCA) (C13) under Schedule 5 Environmental Heritage of BLEP 2012. As shown in Figure 8, the subject site is also adjacent to the Cintra Estate HCA (C6) and Wallace and Brady Streets HCA (C20) to its west (under BLEP 2012) and the Gads Hill HCA (C40) to its east, which is listed in the Inner West LEP 2022.

Figure 8: Heritage map showing The Strand outlined in dark blue, local heritage items (shaded ochre), HCAs (hatched in red) and SHR items (cross-hatched in blue). (Source: GML 2025)
The Strand was first developed between 1910 and 1923 in association with the 1909 Malvern Hill subdivision and early twentieth-century settlement of Croydon. Integral to the model suburb planning of the Malvern Hill Estate, The Strand was specifically designed as the commercial centre for the suburb. The subject site comprises two distinct blocks divided by a wide road with an avenue of palm trees.
The broader area around the subject site contains a range of low-rise building typologies, predominantly residential properties including Federation style and early interwar buildings. Commercial development of the area is primarily confined to the neighbourhood shopping strip concentrated mostly on the subject site. The subject precinct marks a transition between Croydon Station and the residential streets of the broader area.
|
|
|
|
Figure 9: View west from Croydon station towards the old post office at the intersection of Paisley Rd. |
Figure 10: View southwest towards The Strand from Croydon station at Paisley Rd |
|
|
|
|
Figure 11: View north along The Strand at the intersection of Malvern Avenue & Thomas Street. |
Figure 12: The Strand road reserve, view west |
The Planning Proposal relates to the properties detailed in Table 1.
Table 1: Legal description of The Strand, Croydon
|
Address (West of the Strand) |
LOT & DP |
Address (East of the Strand) |
LOT & DP |
|
1-1A The Strand |
Lot 1, Sec D, DP5613; Lot 2, Sec D, DP5613 |
2 The Strand |
Lot 4, Sec C, DP5613 |
|
3 The Strand |
Lot 1, DP255126 |
4-6 The Strand |
Lot 5, Sec C, DP5613 |
|
5 The Strand |
Lot 21, DP719900 |
4-6 The Strand |
Lot 6, Sec C, DP5613 |
|
7 The Strand |
Lot 22, DP719900 |
8-10 The Strand |
Lot 7, Sec C, DP5613; Lot 8, Sec C, DP5613 |
|
9 The Strand |
Lot 3, DP255126 |
12 The Strand |
Lot 1, DP255125 |
|
11 The Strand |
Lot 4, DP255126 |
14 The Strand |
Lot 2, DP255125 |
|
13 The Strand |
Lot 5, DP255126 |
16 The Strand |
Lot 3, DP255125 |
|
15 The Strand |
Lot 6, DP255126 |
18 The Strand |
Lot 4, DP255125 |
|
17 The Strand |
Lot 7, DP255126 |
20 The Strand |
Lot 5, DP255125 |
|
19 The Strand |
Lot 8, DP255126 |
22 The Strand |
Lot 6, DP255125 |
|
21 The Strand |
Lot 9, DP255126 |
24 The Strand |
Lot 7, DP255125 |
|
23 The Strand |
Lot 10, DP255126 |
26 The Strand |
Lot 8, DP255125 |
|
25 The Strand |
Lot 11, DP255126 |
28 The Strand |
Lot 9, DP255125 |
|
27 The Strand |
Lot 14, Sec D, DP5613 |
30 The Strand |
Lot 10, DP255125 |
|
|
32 The Strand |
Lot 11, DP255125 |
|
|
34-40 The Strand |
Lot 12, DP255125 |
||
|
42 The Strand |
Lot 13, DP255125 |
||
|
44 The Strand |
Lot 14, DP255125 |
||
|
46 The Strand |
Lot 15, DP255125 |
||
|
48 The Strand |
Lot 16, DP255125 |
||
|
50 The Strand |
Lot 17, DP255125 |
||
|
|
|
|
Figure 14: Existing Heritage Map |
Figure 15: Proposed Heritage Map |
Table 2: Proposed addition to Schedule 5 of Burwood LEP 2012
|
Suburb |
Item name |
Address |
Property description |
Significance |
Item no |
|
Burwood |
The Strand |
1-50 The Strand, Croydon 2132 |
See Table 1 for property description |
Local |
I237* |
* Heritage Item Nos. are indicative only at this stage and are to be confirmed at finalisation.
Heritage Assessment
In April 2025, Council engaged a qualified heritage consultant, GML Heritage to seek independent heritage on the heritage significance of The Strand, Croydon.
The heritage assessment report (Attachment 2) completed by GML includes an assessment of significance of the subject properties in accordance with the standard criteria established in the NSW Heritage Office guidelines. These guidelines provide the framework for heritage assessment and incorporate the seven criteria of cultural heritage values identified in the Burra Charter into a structured framework.
Table 4 below provides a summary of heritage assessment of The Strand against the assessment framework demonstrating that The Strand satisfies multiple heritage assessment criteria for its local group heritage listing.
Table 4: NSW Heritage Assessment Criteria applying to The Strand
|
NSW Heritage Criteria for local listing |
The Strand |
|
Criterion (A) Historical Significance The Strand meets the threshold for Criterion (A) Historical Significance with the following significance indicator: · Demonstration of important periods or phases in history |
Yes |
|
Criterion (B) Historical Association The Strand meets the threshold for Criterion (B) Historical Association with the following significance indicator: · A key phase(s) in the establishment or subsequent development at the place or object was undertaken by, or directly influenced by, the important person(s) or organisation. · An event or series of events of historical importance occurring at the place or object were undertaken by, or directly influenced by, the important person(s) or organization. |
Yes |
|
Criterion (C) Aesthetic/Technical Significance The Strand meets the threshold for Criterion (C) Aesthetic or Technical Significance with the following significance indicator: · Recognition as a landmark or distinctive aesthetic natural environment. · Recognition of artistic or design excellence. |
Yes |
|
Criterion (D) Social, Cultural and Spiritual Significance The Strand meets the threshold for Criterion (C) Aesthetic or Technical Significance with the following significance indicator: · Highly regarded by a community as a key landmark (built feature, landscape or streetscape) within the physical environment. · Important to the community as a landmark within social and political history · Important as a place of symbolic meaning and community identity. · Important as a place of community service (including health, education worship, pastoral care, communications, emergency services, museums). |
Yes |
|
Criterion (E) Research Potential No sufficient evidence is currently present to satisfy this criterion. |
No |
|
Criterion (F) Rarity The Strand meets the threshold for Criterion (F) Rarity due to the following significance indicator: · Distinctiveness in demonstrating an unusual historical, natural, architectural, archaeological, scientific, social or technical attribute(s) that is of special interest. |
Yes |
|
Criterion (G) Representativeness The Strand meets the threshold for Criterion (G) Representativeness with the following significance indicator: · A class of places or objects that demonstrate an aesthetic composition, design, architectural style, applied finish or decoration of historical importance. |
Yes |
|
Integrity The setting and context of The Strand have remained unchanged since the development of its buildings. The planned layout of the pedestrian realm and central avenue of trees is still extant and adds to the character of the precinct. The buildings vary in integrity. Most shopfronts on the northern side of the road are intact. Features including pressed metal ceilings have been retained. All of the shops have been altered at ground level with changes in use and tenancy. However, in general, most buildings retain some original features such as ceramic tiled front porches with Art Nouveau motifs, tessellated tile patterns, brass sashes around windows, leadlight glazing and terracotta vents. The upper-storey fabric is mostly intact across all buildings. No new openings and limited infills were noted for the upper storeys of the buildings. Features such as recessed facades in arches, original sash windows, parapets and details in brickwork remain intact and legible. The buildings can be considered to have integrity consistent with original design, composition and external materiality. Overall, the planned layout of The Strand and the Federation-style character of its buildings remain highly legible. |
Yes |
Heritage Statement of Significance – The Strand, Croydon
The assessment undertaken by GML recommends the following as the key evidence and support for heritage significance of The Strand:
· The Strand, Croydon meets the threshold for heritage listing under the historic, associative, aesthetic, social, representative and rare criterion of the NSW Heritage Assessment Criteria. These attributes are contributory to, but distinct from, the values of the Malvern Hill HCA as a whole.
· The Strand, located adjacent to Croydon Station and developed between 1910 and 1923, has historic significance to the locality of Croydon. It is associated with the 1909 Malvern Hill subdivision and early twentieth-century settlement of Croydon. Integral to the model suburb planning of the Malvern Hill Estate, The Strand was specifically designed as the commercial centre for the suburb. Its planning and segregation from the residential zone of the suburb demonstrate the influence of the garden suburb movement of the early 20th century. The precinct comprises two distinct blocks divided by a wide road with an avenue of palm trees.
· The Strand is associated with the Intercolonial Investment Land and Building Company (IILBC). Most of the shops were owned and constructed by the company, making The Strand possibly the most substantial group of Federation-era shops built by a single owner in Sydney. The IILBC was instrumental in recognising, developing and marketing the precinct. The Strand is also a good example of a precinct featuring buildings designed by a few different architectural firms/architects including Ross & Rowe, Booker and Wilson, Spencer and Spencer, and Charles H Christian.
· The Strand is a broad, elegant shopping area that significantly enhances the Federation-style character of Malvern Hill Estate. Its aesthetic appeal is defined by varied building forms including its curvilinear shape, unified parapets, and picturesque streetscapes on both sides. Despite refurbishments, the original design intent remains clear, preserving the precinct's aesthetic significance and integrity. Notable landmarks like the former post office at 1 The Strand contribute to its distinctive character. The intactness of original Art Nouveau features, such as leadlight glass and tile patterns, contribute to its aesthetic attributes.
· Designed as a distinct commercial precinct within a garden suburb, The Strand has retained its original and historic commercial function. The Strand is representative of a collection of good-quality Federation and early interwar two-storey, shop top buildings developed adjacent to a railway station. It contributes greatly to the Federation-style character of the wider suburb. The buildings comprising The Strand are highly intact and not compromised in integrity. It has maintained its aesthetic character with street planning and planting.
· The Strand has social value as a community centre which has been a place to gather, shop and socialise since the 20th century.
· While not a formal social values assessment, the recent public exhibition process of the Alternative Croydon TOD Masterplan demonstrates that there is community affinity for The Strand and desire for its conservation.
· The Strand is a rare example of a highly intact Federation-era commercial precinct. Envisaged as a commercial strip on both sides of a main road, it has retained much of its integrity. Unlike other Federation-style shops, which are limited to one side of the main road, The Strand is a planned commercial area within the Malvern Hill Estate, segregated from residential areas and lacking pubs or hotels. This reflects the estate owners' vision for a garden suburb.
· Developed by a single owner, the IILBC, The Strand is possibly the largest group of shops built by one owner, with none demolished. It stands out as a distinct commercial precinct from the Federation era in the Burwood LGA, making it a rare and unique example of its type. It is the only one of its type across the local area.
Proposed Boundary of the Group Heritage Item
The proposed heritage boundary of The Strand is shown in Figure 16 which takes into consideration significant views of The Strand, its setting and contextual relationships with its surrounding.
Located adjacent to Croydon Station, The Strand exhibits strong aesthetic qualities that contribute to its setting and broader context. Notable views include the southwest vista from the railway station, which frames the former Post Office (No. 1 The Strand) and the former Butchery (No. 2 The Strand) at the junction of The Strand.

Figure 16: Proposed Boundary of the Group Heritage Item (Source: GML, 2025)
These landmark buildings function as visual markers and provide a principal entry point into the commercial precinct. While views from the south are of lesser significance, the presentation of each streetscape along The Strand contributes to the overall character of the precinct.
Consistency with State and Local Planning Policies
A detailed assessment demonstrating the strategic and site-specific merit of the Planning Proposal and its consistency with the applicable State and Local Planning Policies is included in Attachment 2. This section highlights some of the key matters of the assessment:
· The Planning Proposal is consistent with the key objectives and priorities of the Greater Sydney Region Plan: A Metropolis of Three Cities and the Eastern City District Plan via identification of The Strand as an ‘environmental heritage’ in BLEP 2012 for its statutory protection.
· The Planning Proposal is consistent with Council’s Community Strategic Plan (CSP) and Burwood Local Strategic Planning Statement (LSPS) as the proposal ensures local character is protected and enhanced via listing of The Strand in the BLEP heritage schedule.
· The Planning Proposal is consistent with Council’s Housing Strategy in enabling The Strand to transform in the future to meet the changing community needs; achieve vibrancy, vitality and rejuvenation whilst allowing the intrinsic value and heritage significance of The Strand being appropriately acknowledged and celebrated via the local listing.
· This Planning Proposal is consistent with the objectives of Burwood LEP 2012 in conserving environmental heritage via its listing on the heritage Schedule and providing statutory protection through Clause 5.10 Heritage Conservation of the LEP.
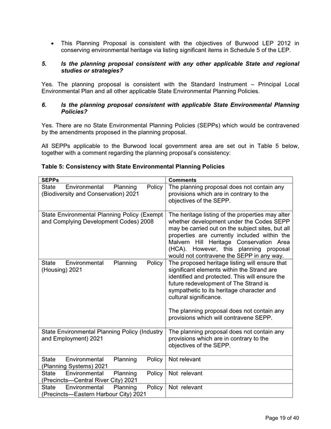
· The Planning Proposal is consistent with the applicable State Environmental Planning Policies (SEPPs) and Local Planning Directions (formerly known as Ministerial Directions) and are detailed in the attached Planning Proposal (Attachment 2). Some of the most relevant SEPPs and Local Planning Directions are listed below:
§ Consistent with SEPP (Exempt and Complying Development Codes) 2008: The proposal does not contravene the intent of the SEPP as The Strand is part of the Malvern Hill Heritage Conservation Area.
§ Consistent with SEPP (Housing) 2021: The proposal ensures significant elements within The Strand are identified and protected so that any future development is sympathetic to its heritage character and cultural significance.
§ Consistent with Local Planning Direction 3.2 Heritage Conservation: Clause 5.10 Heritage Conservation of BLEP 2012 would apply to the subject sites following the gazettal of the PP, providing statutory protection.
§ Consistent with Local Planning Direction 7.1 Employment Zones: The planning proposal applying to the Employment Zone does not propose to alter the extent of the employment zone and /or reduce the total potential space area for employment uses.
Consultation
On 15 August 2025, early engagement notification letters were sent out to the property owners in The Strand who would be directly impacted by the proposed heritage listing. The intent of the notification letter was to inform the property owners of Council resolution of 29 January 2025, the Heritage Assessment report prepared by GML and the commencement of pre-engagement for the proposed group heritage listing.
The objective of undertaking early engagement was to gather feedback from the affected property owners and the wider community on the proposed group heritage listing of The Strand prior to reporting the matter to the Burwood Local Planning Panel.
A dedicated section was established on Council’s online platform, Participate Burwood with the following documents being displayed for review and submission:
· Heritage Assessment Report of the Strand, GML Aug 2025
· Draft Heritage Inventory Sheet, GML Aug 2025
· Site Identification Map
· Proposed amendments to the Heritage Map of the Burwood LEP 2012
Email correspondence was sent to Inner West Council, the Burwood & District Historical Society, and local Councillors to advise them of the proposed group heritage listing and the accompanying GML report, and to invite their feedback.
Early engagement commenced on 18 August and concluded on 22 September 2025. During this period, a total of 23 submissions were received. 19 submissions were received via online Participate Burwood platform, and (4) four submissions were received as direct email correspondence to Council which included the submissions from the Burwood & District Historical Society and the NSW National Trust of Australia.
None of the submissions received objected to the proposed group heritage listing of The Strand. A detailed submissions register and Council’s response to the submissions are included in Attachment 4. Some of the key matters noted in the submissions are summarised in Table 5 below:
Table 5: Summary of key matters noted in early engagement submissions
|
Summary of key matters |
Council response
|
|
The submission supports the independent and comprehensive assessment of The Strand and the proposed group heritage listing. The submission emphasises that the current status of The Strand as a Heritage Conservation Area is unable to provide the legal protection the precinct deserves and that only formal heritage listing can ensure long-term protection and integrity of The Strand.
The submission also recommends that Council explore support measures for property owners, such as reduced development fees, a central contact point, and access to grant opportunities.
|
Noted. Matters relating to heritage development applications and relevant fees are reviewed on a case-by-case basis. All development application related queries are taken by Council's duty planning officer. Any specific queries regarding heritage Development Applications (DAs) can be further discussed with Council's Senior Heritage Planner. Recommendation in relation to grant funding will be further explored by Council as part of future heritage conservation initiatives. |
|
The submission supports the proposed group heritage listing of The Strand. Concern is raised in relation to future maintenance of the heritage value of The Strand and that it should not put significant burden on rate payers. |
Council’s Local Environmental Plan contains provisions that enable the sustainable redevelopment of heritage items through adaptive reuse, supporting their ongoing maintenance and long-term viability. Any future development applications proposing adaptive reuse will be considered and assessed on a case-by-case basis, guided by Council’s heritage advisor.
|
|
The submission supports the assessment undertaken by GML, the extent of the heritage boundary and the proposed group heritage listing of The Strand.
It supports the recommendation that a conservation management plan be prepared for the ongoing protection of The Strand. The submission commends Council for initiating the heritage listing of The Strand. |
The preparation of a Conservation Management Plan is a recognised approach to protecting and maintaining heritage items. Council’s Local Environmental Plan also provides for the sustainable redevelopment of heritage items through adaptive reuse, helping to ensure their ongoing upkeep and long-term viability. As part of any future development, a Conservation Management Plan or Strategy will be required to accompany a Development Application. In addition to the heritage assessment, Council will undertake further specialist studies in accordance with Council’s resolution to undertake a precinct-specific study of The Strand. Future Conservation Management Plans or Strategies will be guided by the recommendations of this further work, and the community will be consulted accordingly.
|
|
The submission provides strong support for Council’s proposal to group list The Strand shops as a heritage item, noting this will further strengthen protections of The Strand. The submission emphasises that the detailed studies underpinning Council’s proposal provide clear evidence of The Strand’s heritage significance and its contribution to the integrity of the Malvern Hill Estate.
The submission commends Council’s initiative and proposes State heritage listing for the entire Malvern Hill Estate.
|
Council notes the comment received and notes that the process for State heritage listing and determination lies with the responsibility of the NSW Heritage Office. Council does not have the authority to initiate or determine State heritage listings. |
Further consultation on the proposal will occur post Gateway Determination.
Planning or Policy Implications
This report following initial community consultation and advice of the Burwood LPP in respect to the Planning Proposal, Councils endorsement and progression of the planning proposal to Gateway Determination stage.
The key steps in progressing the Planning Proposal are outlined below:
1. Submission of the Planning Proposal to DPHI for Gateway Determination. This step establishes whether the proposal may proceed and sets out the requirements for formal community consultation.
2. Formal public exhibition of the Planning Proposal and consultation with relevant State agencies, consistent with requirements of the Environmental Planning and Assessment Act, the Environmental Planning and Assessment Regulation 2021, as well as other relevant plans and guidelines including the Burwood Community Engagement Strategy, Local Environmental Plan Making Guideline and any conditions of the Gateway Determination.
3. Reporting the outcomes of the formal community consultation to Council, at which time Council will determine whether to adopt the Planning Proposal and proceed to plan-making.
4. If adopted, Council will submit relevant documentation to DPHI to amend Schedule 5 of BLEP 2012.
5. Formal inclusion of the subject site as a group heritage listing in Schedule 5 of the Burwood LEP 2012.
It is anticipated that the process will take approximately three to six months to complete, from submission of the Planning Proposal to DPHI. Notwithstanding this timeframe, the subject sites will be afforded interim heritage protection (i.e. deemed “draft heritage items”) once the Planning Proposal is placed on public exhibition. At that time, a notation will also be added to Council’s Planning Certificates to ensure the information is available to current and future landowners.
Financial Implications
Financial implications for the preparation of the Planning Proposal are covered within Council’s existing operating budget.
Conclusion
Whilst the recently gazetted Croydon TOD provisions seek to increase density in The Strand due to the proximity to public transport, the proposed local group heritage listing intends to strengthen character protections and inform heritage planning processes for any future development in The Strand, Croydon.
The Planning Proposal will facilitate the group heritage listing of The Strand under Schedule 5 of BLEP 2012. The Strand is currently located in the Malvern Hill Conservation Area under BLEP 2012 but not listed as a heritage item under Schedule 5.
The Planning Proposal is supported by an independent heritage advice prepared by a qualified heritage consultant, GML in accordance with the resolution of Council’s extraordinary meeting of 29 January 2025. The advice provided in the report by GML concludes that The Strand demonstrates heritage significance for local group listing and meets the threshold of local significance under multiple criteria set out in the NSW Heritage Office Guidelines.
It is recommended that the Council support the Planning Proposal for the group heritage listing of The Strand, Croydon and endorse it for DPHI Gateway Determination.
1. That Council approve and endorse the preparation and submission to the NSW Department of Planning, Housing and Infrastructure of a request for Gateway Determination for a Planning Proposal to amend the Burwood Local Environmental Plan 2012 by updating Schedule 5 to include a group heritage listing for The Strand, Croydon. The Planning Proposal applies to the properties located at 1–50 The Strand, Croydon, as outlined in this report.
2. That, subject to the issuing of a Gateway Determination by DPHI, the Planning Proposal be publicly exhibited for a minimum period of 28 days, with community consultation undertaken and a public hearing held in accordance with the Environmental Planning and Assessment Act 1979.
3. That the General Manager be delegated authority to make minor modifications to correct any numerical, typographical, interpretative, or formatting errors, if required.
4. That the results of the Gateway Determination, community consultation and engagement process, and public hearing be reported back to Council.
1⇩ Attachment 1 - Planning Proposal for Group Heritage Listing - The Strand
2⇩ Attachment 2 - GML Final Heritage Assessment Report, The Strand Croydon, August 2025
3⇩ Attachment 3 - Draft Heritage Inventory Sheet - The Strand
4⇩ Attachment 4 - List of Submissions - The Strand
5⇩ Attachment 5 - BLPP Minutes - Group Heritage Listing The Strand - October 2025
Item Number 11/26 - Attachment 1
Attachment 1 - Planning Proposal for Group Heritage Listing - The Strand

Item Number 11/26 - Attachment 2
Attachment 2 - GML Final Heritage Assessment Report, The Strand Croydon, August 2025

Item Number 11/26 - Attachment 5
Attachment 5 - BLPP Minutes - Group Heritage Listing The Strand - October 2025

File No: 26/10324
Report by Director People & Performance
Summary
Every two years, Council undertakes a community satisfaction survey to better understand residents’ views, priorities and experiences. The most recent survey was conducted by Micromex Research between October and November 2025.
The research involved a random telephone survey of 351 residents living within the Burwood Local Government Area, conducted via both landline and mobile phones.
This report presents the key findings and insights from the survey, highlighting community priorities and satisfaction levels.
Operational Plan Objective
C.11.1 Conduct Council business with transparency, accountability, compliance and probity that ensures community confidence in decision making
Background
The Community Satisfaction survey assesses overall satisfaction with Council’s performance, identifies key community priorities for Burwood’s future, measures satisfaction with a range of Council services, facilities and activities, and explores residents’ experiences when contacting Council.
The results provide a clear snapshot of community perceptions and help guide Council’s strategic focus over the coming years.
Proposal
Burwood continues to grow and evolve as one of Sydney’s most dynamic communities. Amid this momentum, residents have maintained a strong level of satisfaction with Council’s performance, with results continuing to track above the Sydney Metro benchmark for local councils.
This reflects the community’s recognition of the progress being made across the city and the ongoing commitment to delivering services, infrastructure and initiatives that support Burwood’s future.
A summary of the survey results is enclosed as an attachment.
Consultation
A comprehensive survey was conducted with 301 residents, complemented by a shorter survey with an additional 50 time‑poor residents.
Planning or Policy Implications
No Planning or Policy implications.
Financial Implications
No Financial implications.
Conclusion
As Burwood continues to welcome new residents, understanding the community’s experience of the area remains essential. This survey provides an important snapshot of how people feel about living in Burwood and the role Council plays in supporting a vibrant, well-serviced and connected community. Overall, the findings reflect a community that remains positive about Council’s performance and the direction of the area, with satisfaction levels continuing to sit above the Sydney Metro benchmark.
That Council receive and note this report.
1⇩ Community Satisfaction Survey Snapshot 2025-2026
File No: 26/10626
Report by Director Corporate Services
Summary
This report seeks Council endorsement to place the updated draft Related Party Disclosures Policy on public exhibition for subsequent adoption. The revised policy reflects current legislative requirements in line with the Australian Accounting Standards Board (AASB), and improves clarity regarding the obligations of Councillors, Key Management Personnel of Council, and related persons. Public exhibition will provide the community with an opportunity to review the updated policy and offer feedback prior to adoption.
Operational Plan Objective
C11.1 Conduct Council business with transparency, accountability, compliance and probity that ensures community confidence in decision making
Background
Under the Australian Accounting Standards, Council is required to disclose all related party relationships, transactions, and Key Management Personnel compensations in its Annual Financial Statements. The draft Policy sets out how Council identifies related parties, captures and records related party transactions and commitments, and discloses required information within annual financial statements in accordance with AASB 124.
Proposal
The draft Related Party Disclosures Policy, contained in Attachment 1 to this report, has been prepared to ensure that Council’s financial statements contain the necessary related party disclosures. This ensures public transparency in dealings with Council and their effect on Council’s financial position.
The draft policy is based on the current Related Party Disclosures Policy adopted in 2017 and has been reviewed to ensure alignment with the current Australian Accounting Standards. Despite no significant changes to the applicable Standards, the review identified several areas where updates would improve readability and, therefore, make it easier to comply with the Policy. The updated Policy clarifies definitions and reporting responsibilities, whilst simplifying the process and forms for managing disclosures.
Consultation
It is proposed to place this draft Policy on public exhibition for 28 days and invite submissions from the public. Placing the Policy on exhibition will ensure openness and provide the community with the chance to comment on the proposed changes. If no submissions are received, it is proposed that the Policy be automatically adopted without further amendment. If submissions are received, a further report will be brought back to Council.
Planning or Policy Implications
No planning or additional policy implications.
Financial Implications
No financial implications.
Conclusion
The proposed revision of the Draft Related Party Disclosures Policy is in line with current applicable Australian Accounting Standards, effectively supporting transparency and accountability within Council’s Annual Financial Statements.
That Council:
1. places the Draft Related Party Disclosures Policy, contained in Attachment 1 to this report, on public exhibition for a period of 28 days and invite submissions from the public,
2. if submissions are received, directs the General Manager to report on the outcome of public exhibition at the next ordinary meeting of Council following the last date for the lodgement of submissions, and
3. if no submissions are received, adopts the Draft Related Party Disclosures Policy without further amendment and revokes the previous Related Party Disclosures Policy adopted in 2017.
1⇩ DRAFT - Related Party Disclosures Policy - Updated Version 2
File No: 26/10627
Report by Director Corporate Services
Summary
It is proposed that Council adopts an updated Statement of Business Ethics to guide suppliers on the standards and expectations of suppliers when conducting business with Council.
Operational Plan Objective
C.11.1 Conduct Council business with transparency, accountability, compliance and probity that ensures community confidence in decision making
Background
The Statement of Business Ethics sets out Burwood Council’s standards and expectations for ethical, transparent and lawful business with our suppliers, contractors, consultants and partners. Council has published a Statement of Business Ethics since 2007, with the most recent Statement being thoroughly reviewed in 2018.
Proposal
The Statement has now been reviewed and updated. The proposed Statement includes consideration of modern slavery legislation, emerging cyber security and information management risks, recommendations of ICAC investigations, and community expectations of social, sustainable and ethical procurement practices.
The Statement will be published on Council’s website alongside examples of prohibited or high-risk conduct. Suppliers will be required to read and sign a supplier declaration stating they have read and agree to the Statement of Business Ethics. Copies of those documents are provided for information.
Consultation
The proposed Statement was reviewed by the Audit Risk and Improvement Committee and that Committee’s feedback was considered before finalising the draft Statement.
Planning or Policy Implications
While there is no legislative requirement to have a Statement of Business Ethics, it is a long-standing practice for most local councils as a probity and corruption-prevention measure. The revised Statement is consistent with current legislation and with existing procurement and governance practices in place at Council.
Financial Implications
No financial implications.
Conclusion
The proposed Statement reflects legislative and procurement practice changes since the last review. Adoption of the updated Statement will continue to support and encourage ethical procurement practices for Burwood Council.
That Council:
1. places the Draft Statement of Business Ethics contained in Attachment 1 to this report on public exhibition for a period of 28 days and invite submissions from the public,
2. if submissions are received, directs the General Manager to report on the outcome of public exhibition at the next ordinary meeting of Council following the last date for the lodgement of submissions, and
3. if no submissions are received, adopts the Draft Statement of Business Ethics without further amendment and revokes the Statement of Business Ethics last adopted in 2018.
1⇩ Draft Statement of Business Ethics - Responsibility Procurement v2
2⇩ Statement of Business Ethics - Examples of Prohibited or High Risk Conduct
3⇩ Statement of Business Ethics - Supplier Declaration Template
Item Number 14/26 - Attachment 2
Statement of Business Ethics - Examples of Prohibited or High Risk Conduct
File No: 26/10648
Report by Director Corporate Services
Summary
In accordance with Clause 212 of the Local Government (General) Regulation 2005, this report details all money that Council has invested under Section 625 of the Local Government Act 1993.
Operational Plan Objective
A.103 Implement and monitor appropriate investment strategies and prepare monthly investment reports.
Background
As provided for in Clause 212 of the Local Government (General) Regulation 2005, a report listing Council’s investments must be presented to Council.
Council’s investments are made up of a number of direct investments, some of which are managed or advised by external agencies.
Investment Portfolio
Council has a diversified investment portfolio and has a number of direct investments in term deposits. Its investment portfolio as at 31 January 2026 is:

As at 31 January 2026 Council held the following term deposits:

As at 31 January 2026 Council held the following Floating Rate Notes:

Its investment portfolio as at 28 February 2026 is:

As at 28 February 2026 Council held the following term deposits:

As at 28 February 2026 Council held the following Floating Rate Notes:

The following graph highlights Council’s investment balances for the past 12 months:

Council’s investment portfolio is recognised at market value and some of its investments are based on the midpoint valuations of the underlying assets and are subject to market conditions that occur over the month.
Council’s investment balances as at reporting date are detailed in Attachment 1 & 2. Definitions on the types of investments are detailed in Attachment 3.
Investment Performance and Market Commentary
At the Reserve Bank of Australia (RBA) meeting on the 3 February 2026, the Board decided to increase the official cash rate by 25 basis points to 3.85 per cent. According to the Statement by the Reserve Bank Board:
"…While inflation has fallen substantially since its peak in 2022, it picked up materially in the second half of 2025. The Board has been closely monitoring the economy and judges that some of the increase in inflation reflects greater capacity pressures. As a result, the Board considers that inflation is likely to remain above target for some time.
Capacity pressures reflect, in part, the greater momentum in demand seen in recent months. Growth in private demand has strengthened substantially more than expected, driven by both household spending and investment. Activity and prices in the housing market are also continuing to pick up. Financial conditions eased over 2025 and it is uncertain whether they remain restrictive. Credit is readily available to both households and businesses and the effects of earlier interest rate reductions are yet to flow through fully to aggregate demand, prices and wages. More recently, the exchange rate, money market interest rates and government bond yields have risen following a rise in market expectations for the cash rate.
Various indicators suggest that labour market conditions remain a little tight and that they have stabilised in recent months, in line with the pick-up in momentum in economic activity. The unemployment rate has been a little lower than expected and measures of labour underutilisation remain at low rates. Growth in the Wage Price Index has eased from its peak, but broader measures of wages growth continue to be strong and growth in unit labour costs remains high.
There are uncertainties about the outlook for domestic economic activity and inflation and the extent to which monetary policy is restrictive. On the domestic side, if growth in demand is stronger than expected, and growth in the economy’s supply capacity remains limited, it is likely to add further to capacity pressures. Uncertainty in the global economy remains significant but so far there has been little or no depressing effect on the Australian economy; indeed, recent growth and trade in Australia’s major trading partners has surprised on the upside.
A wide range of data over recent months have confirmed that inflationary pressures picked up materially in the second half of 2025. While part of the pick-up in inflation is assessed to reflect temporary factors, it is evident that private demand is growing more quickly than expected, capacity pressures are greater than previously assessed and labour market conditions are a little tight.
The Board judged that inflation is likely to remain above target for some time and it was appropriate to increase the cash rate target.
The Board will be attentive to the data and the evolving assessment of the outlook and risks to guide its decisions. In doing so, it will pay close attention to developments in the global economy and financial markets, trends in domestic demand, and the outlook for inflation and the labour market. The Board is focused on its mandate to deliver price stability and full employment and will do what it considers necessary to achieve that outcome.
Today’s policy decision was unanimous.”
The following graph provides information on the current RBA monetary policy:

1. That the investment report for 31 January 2026 and 28 February 2026 be received and endorsed.
2. That the Certificate of the Responsible Accounting Officer be received and noted.
1⇩ Investment Register January 2026
2⇩ Investment Register February 2026
3⇩ Investment Types
File No: 26/10831
Report by General Manager
Summary
This report is to inform Council of the upcoming 2026 National General Assembly of Local Government and the 2026 Australian Placemaking Summit.
Operational Plan Objective
2.5.1 Provide strong leadership and advocacy on behalf of the community.
Background
2026 National General Assembly of Local Government (NGA26)
The 2026 NGA26 will be held at the National Convention Centre in Canberra from 23 to 25 June 2026. Council may nominate one Voting Delegate, and Council is requested to consider if and which Councillors will attend as delegate and nominated observers.
The theme for the NGA this year is “Stronger Together: Resilient. Productive. United”.
2026 Australian Placemaking Summit
The Australian Placemaking Summit will be held at the Sydney Masonic Centre, Sydney from 13 to 14 May 2026. The Summit is a high-level forum for discussion and debate around the crucial role of placemaking in creating better places and shaping the future of cities and towns across Australia. The 2-day summit will provide a leading platform for people from both the government and private sectors to network and discuss opportunities as well as solutions for challenges encountered in the process of placemaking. Council has previously been invited to contribute to this national forum, helping to shape national dialogue on placemaking.
Council may nominate delegates to attend to gain a deeper understanding of the role of placemaking within our community.
Financial Implications
NGA26
The table below indicates approximate costs per person to attend the 2026 National General Assembly of Local Government in Canberra:
|
· Early Bird Registration Fee (Payment due by Thursday 30 April 2026) |
$999.00 |
|
· Conference Dinners o GA Dinner – Australian War Memorial on Thursday 25 June 2026 |
$245.00 |
|
· Return Air Fare to Canberra Or Travel by Car |
$550.00 - $600.00 |
|
· Hotel Accommodation per Night |
$495.00 |
Councillors using private vehicles will be reimbursed in accordance with the Rate payable for claims by Council Officers under the NSW (Local Government) State Award, subject to the cost not exceeding the average air fare of other Councillors who flew or, if no other Councillor flew, the Flexible Economy Class air fare to the same destination available at the time of the conference.
Australian Placemaking Summit
Below is an approximate cost per person to attend the summit in Sydney:
|
· Early Bird Registration Fee
|
$1,315 |
The above expenses will be met by Council in accordance with the Councillors’ Expenses and Facilities Policy.
If spouses/partners wish to accompany Councillors to the NGA26 or the Australian Placemaking Summit, all costs, including any additional air fare/accommodation costs, must be met by the Councillor or spouse/partner.
1. That Council nominates the Mayor, or his alternate, as the Voting Delegate for the 2026 National General Assembly of Local Government (NGA26) to be held from 23 to 25 June 2026 in Canberra.
2. That Council determines the attendance of Councillors and the General Manager as observers at the 2026 National General Assembly of Local Government (NGA26) from 23 to 25 June 2026 in Canberra.
3. That Council determines the attendance of the Mayor, Councillors and the General Manager as attendees at the 2026 Australian Placemaking Summit from 13 to 14 May 2026 in Sydney.